|
A100 Basel :: Moderne Architektur - betrieben mit Sonnenenergie |
||||
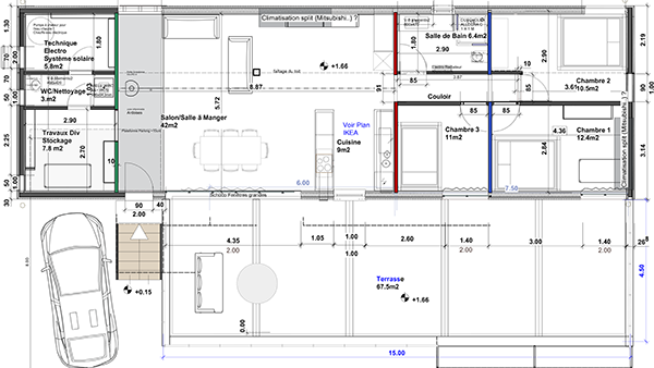
| In Realisierung 'Maison RGB' an der Atlantikküste, nur 2 müM, Stand 07-25 | ||||
|
|
||||
| a100.ch Architektur Gellertstrasse 55, 4052 Basel ¦ info @ a100.ch Daniel Schulthess Dipl Arch ETH |
|
|||
|
Bitte Anfragen per WhatsApp oder E-Mail / dem Kontaktformular |
Whatsapp # +49 176 98 222 125 | |||









